產品簡介
YHS弧形篩常用型是一種無動力設備,由一組布置在圓弧面上的固定篩條組成,分級粒度為篩孔寬度的1/2。是一種專門進行固液分離的篩分設備,廣泛應用于選煤、選礦、糧食、淀粉、食品、紙漿、橡膠等料漿的濕式篩分和脫介、脫水作業。一般將弧形篩安裝在動力篩前配套使用,以減少動力篩數量或面積。該系列篩機具有結構簡單輕便、占地面積小、分離效果好、物料不易堵塞等優點。
YHS系列弧形篩分為無振源和有振源兩大類,無振源分為固定式和翻轉式,有振源分為振動固定式和振動翻轉式,選用翻轉式弧形篩時需要考慮翻轉篩面的空間。無特殊要求,篩面材質按不銹鋼制造,篩面寬達3m為雙排。
下面著重介紹振動翻轉弧形篩,它是在普通翻轉弧形篩的基礎上加裝了振動機構,使得設備有效的解決了普通翻轉弧形篩堆料脫介效率低的難題,增大弧形篩篩板有效使用面積;篩板的振動增加了介質的透篩速度,所以在相同面積下比非振動弧形篩脫介效率提高1.2倍以上;振源采用低振幅高頻率的振動電機,也可采用采用電磁振動,激振力的大小在線可調,可與集控系統連接,提高工廠自動化能力。
適用行業
適用于煤炭、礦山、冶金、建材、電力、水利、輕工和化工等行業,調木車間污水、去皮水、木片洗滌水、排渣脫水、纖維分離。
適用物料
適用于煤、石灰石、碎石、砂礫、金屬或非金屬礦石及其他物料的篩分。
產品結構
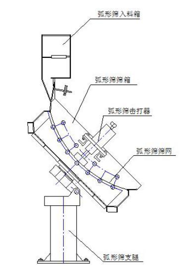
振動翻轉弧形篩結構簡圖

工作原理
YHS弧形篩的脫水原理是依靠篩條入料側尖銳的棱邊對煤泥水的切割作用,使顆粒表面水的張力受到破壞,從而將煤泥水分離出去。弧形篩主要由弧形不銹鋼篩面和篩框與支座組成。翻轉弧形篩的篩框中間位置有中心旋轉軸,篩框可以中心旋轉軸旋轉180°,實現入料端和出料端位置對調,而篩網不用拆卸調換方向,達到均勻磨損,從而延長篩面的使用壽命,操作靈活方便。
產品特點
1、不銹鋼柵條式弧形篩板,縫寬50-250微米;
2、壓力式進料和柵條式弧形篩板確保較高的過濾能力;
3、自動清洗篩板和進料口;
4、結構緊湊、安裝操作維護簡便
5、篩箱可旋轉,保證篩面均勻磨損,延長篩面使用壽命,操作靈活方便。
型號說明





客服1