GZM型振動給料機是我公司與煤炭部選煤設計研究院聯合研制的新型給料設備。該機采用雙普通電機自同步分離拖動技術,電機不參振,采用箱式激振器,極大的簡化了激振裝置。該機具有結構簡單、處理量大、噪音小、能耗低、動負荷小、使用壽命長等特點。
該機型安裝方式為前吊后座、全座、全吊、前座后吊。電機分普通和防爆型,380V和660V;電機可左右布置,也可同一側布置。專用溜槽閘門分為手動和電液自動式。
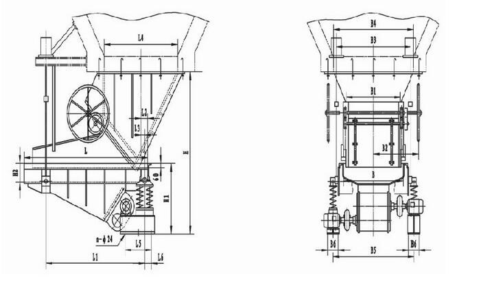
單閘門給料機安裝圖及主要尺寸:


產品型號說明:
G Z M 12 30
┬ ┬ ┬ ┬ ┬
│ │ │ │ │
│ │ │ │ └─────────槽體長度(dm)
│ │ │ └───────────槽體寬度(dm)
│ │ └─────────────煤用
│ └────────────── 振動
└────────────────給料機




客服1